Sezione Tesi di Laurea, Dottorato, Master Post-Laurea o Specializzazione

Medaglia d´Oro

LA ROVINA IN ATTESA. Un progetto di conservazione e valorizzazione per il forte di Col Vidal

Candidato: Daniele Giurizzato

Università: IUAV di Venezia

Dipartimento: di Architettura Costruzione e Conservazione

Relatrice: Prof.ssa Emanuela Sorbo

Tavole

Medaglie d´Argento

L'Area Sacra Repubblicana ad Ostia Antica tra permanenze e mutamenti

Candidata: Anna Saviano

Università: "Sapienza" Università di Roma

Dipartimento: Dipartimento di Storia, Disegno e Restauro dell'Architettura

Relatore: Prof.ssa Donatella Fiorani

Tavole

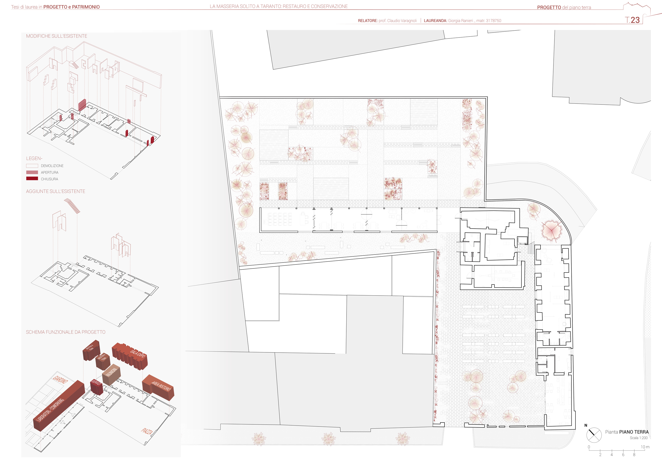
La masseria Solìto a Taranto: restauro e conservazione

Candidata: Giorgia Ranieri

Università: Università degli Studi "G. D'Annunzio" di Chieti - Pescara

Dipartimento: Dipartimento di Architettura

Relatore: Prof. Claudio Varagnoli

Tavole

Menzione d'Onore

Las murallas de Marcarell. La tapia valenciana

Candidate: Alessia Di Rocco, Clarissa Amelia Casagrande, Silvia Guerinoni

Università: Università degli Studi di Genova

Dipartimento: Dipartimento di Culture del Progetto

Relatore: Prof.ssa Daniela Pittaluga

Tavole

Il castello di Monte Sant'Angelo

Candidati: Luigiana Capone, Giorgia Caradonna, Fabio Colapietro, Luciana Colasacco, Antonio Di Vittorio, Martina Succurro

Università: Politecnico di Bari

Relatrice: Prof.ssa Rossella De Cadilhac

Tavole

Restauro e valorizzazione della chiesa di San Rufo in Piedimonte di Casolla (CE)

Candidata: Irene Savinelli

Università: Università degli Studi di Napoli "Federico II"

Dipartimento: Scuola di Specializzazione in Beni Architettonici e del Paesaggio

Relatore: Prof. Andrea Pane

Tavole

Messa in sicurezza di chiese e campanili. Analisi tecnico-economica degli interventi post-sisma 2012 per la definizione di linee di indirizzo

Candidata: Lia Ferrari

Università: Università degli Studi di Parma

Dipartimento: Dottorato di Ricerca in Ingegneria Civile e Architettura 

Relatrice: Prof.ssa Eva Coisson

Tavole

Il complesso della Cattedrale di Cosenza nel suo contesto urbanistico, dalla storia al progetto di restauro e valorizzazione

Candidato: Rinaldo D'Alessandro

Università: "Sapienza" Università di Roma

Relatrice: Prof.ssa Maria Grazia Turco

Tavole

Restauro e valorizzazione del sepolcro di Villa Alfano sull'Appia Antica (Roma)

Candidate: Francesca Paranzino, Ylenia Romani, Samatha Taglienti

Università: "Sapienza" Università di Roma

Dipartimento: di Storia, Disegno e restauro dell'Architettura

Relatrice: Prof.ssa Lia Barelli

Tavole